АЛЬФА ФРОСТ ДВ - Запчасти к рефрижераторным контейнерам Carrier (Кариер), Thermo King (Термо Кинг), Daikin (Дайкин), StarCool (СтарКул)
Part List Daikin LXE 10E-1

Список запасных частей (Part List) для рефрижераторных контейнеров моделей Daikin LXE 10E-1

ИНСТРУКЦИЯ

В списке деталей указаны компоненты морских контейнерных холодильных установок DAIKIN. Перед использованием списка ознакомьтесь с приведенной ниже информацией.
1. При заказе запчастей обязательно укажите номер модели, наименование детали и тип детали. При заказе запчастей, для которых номер детали не указан в столбце «НОМЕР ДЕТАЛИ», обязательно укажите номер чертежа (DWG.NO.).
2. В списке указаны только детали для замены или ремонта на месте эксплуатации. Для некоторых деталей требуется время на изготовление или они поставляются в комплекте, поэтому, пожалуйста, свяжитесь с ближайшим центром запчастей DAIKIN.
3. Индексные обозначения:
Значение обозначений A, B и C следующее:
A. Наиболее важные запасные части
1. Детали, неисправность которых приводит к фатальным повреждениям оборудования.
2. Детали с высоким риском неисправности.
3. Детали, изнашивающиеся после длительного срока службы.
B. Важные запасные части, следующие за A, но с не таким высоким риском неисправности.
C. Детали с низким риском неисправности, но рекомендуемые для хранения на складе, чтобы компенсировать повреждения при транспортировке контейнеров и длительные сроки доставки и т. д.
Детали без маркировки A, B и C — это детали, необходимость в которых при нормальной эксплуатации не так высока.
обозначение модели Daikin

СОДЕРЖАНИЕ

А. Детали, относящиеся к устройству (снаружи)
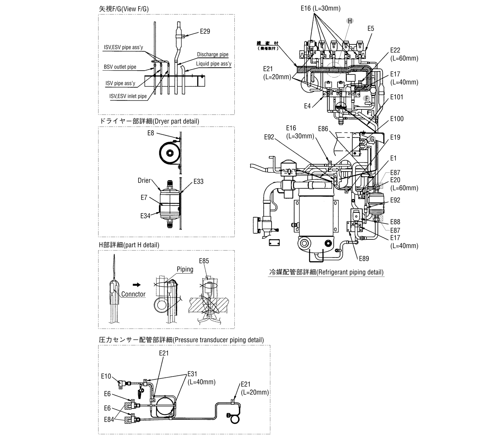
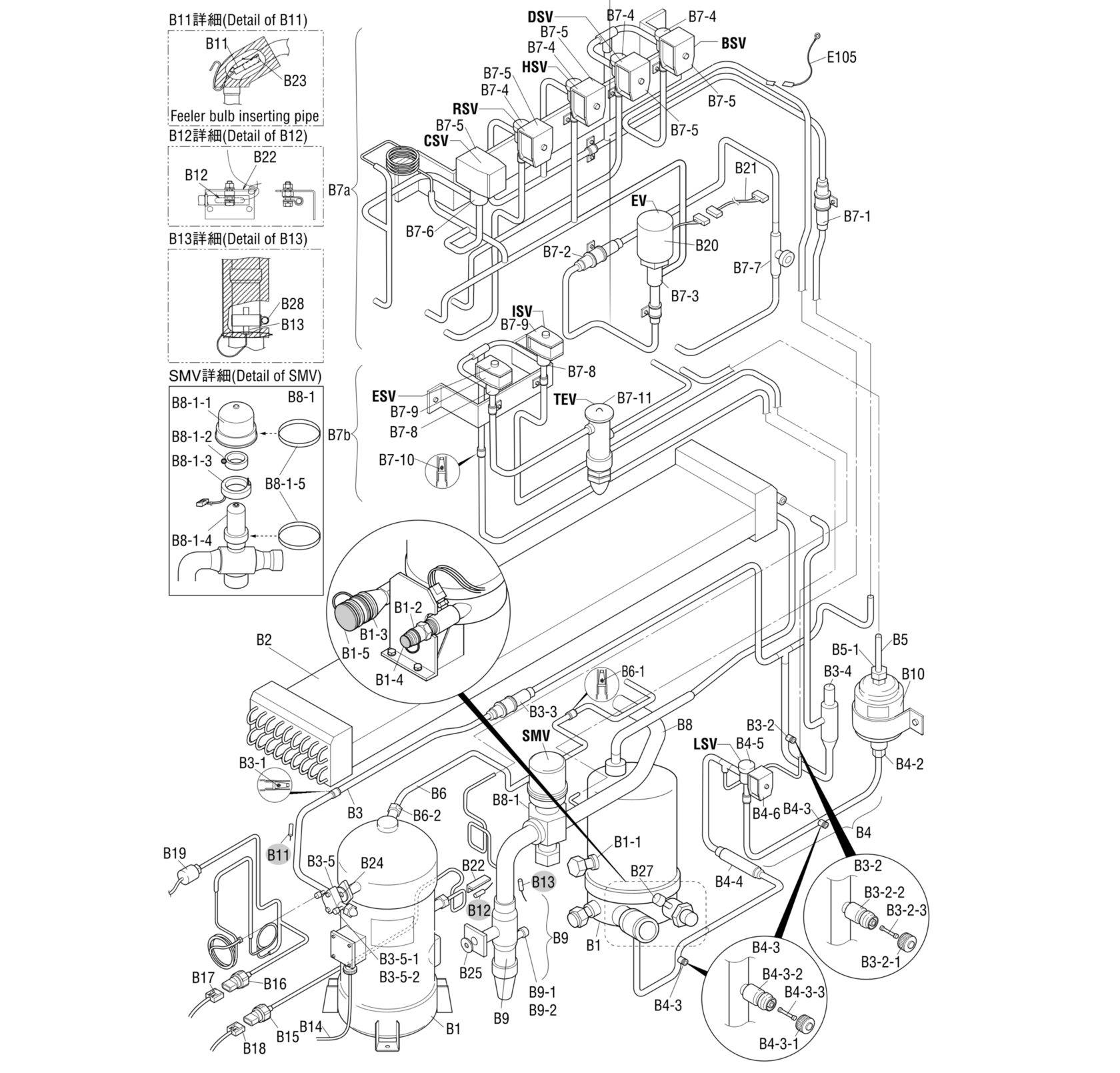
B. Детали, связанные с трубопроводами хладагента (наружные)
C. Детали, относящиеся к устройству (внутри)
D. Детали, связанные с трубопроводами хладагента (внутри)
Е. Прочие детали (хомуты для труб, уплотнительные и изоляционные материалы и т. д.)
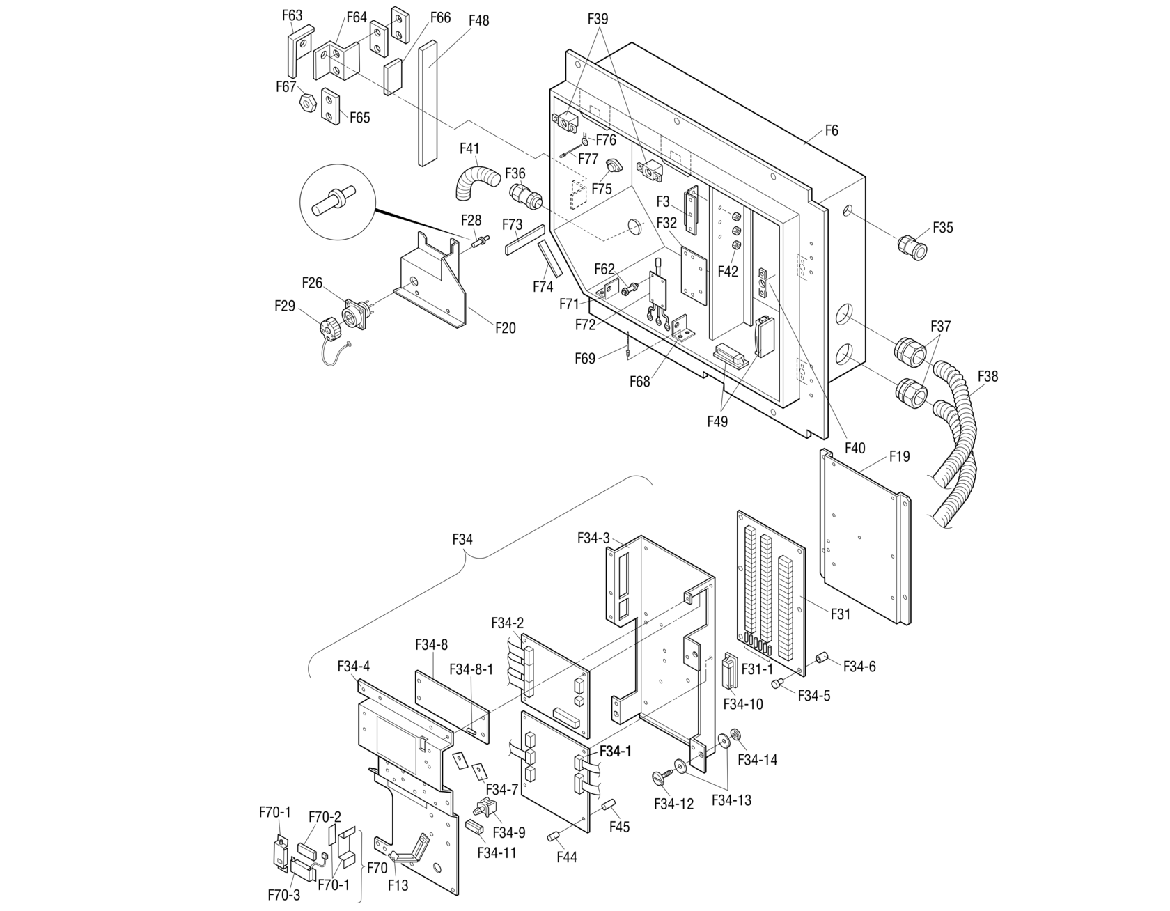
F. Блок управления
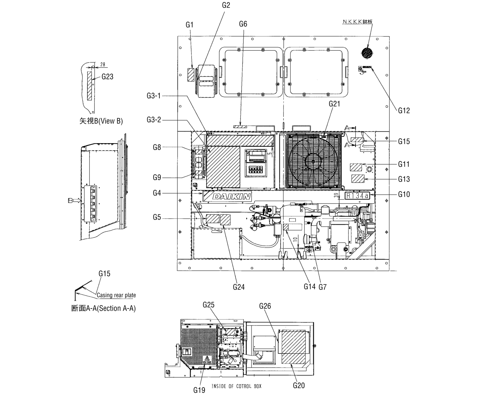
G. Детали, относящиеся к табличке с названием.
I. Части, относящиеся к варианту 1 – USDA
J. Части, относящиеся к варианту 2 – МОДЕМ
К. Детали, относящиеся к варианту 3 – Защитная решетка для внутреннего вентилятора
L. Список размеров стандартных трубных хомутов
M. Примечание для заказа запасных частей:
1. Детали рекомендуется заказывать вместе с уплотнением, прокладкой, уплотнительным материалом и табличкой с названием;
2. Электромагнитные клапаны и клапаын регулирования давления;
3. Датчики давления;
4. Датчики температуры.
N. Измерительные и регулировочные инструменты:
1. Инструменты для действий в чрезвычайных ситуациях;
2. Кабель для персонального компьютера (для DCCS)
A. Детали, относящиеся к устройству (снаружи)
B. Детали, связанные с трубопроводами хладагента (наружными).
детали трубопровода рефконтейнера Daikin
C. Детали, относящиеся к устройству (внутри)
Испаритель, двигатели Daikin
D. Детали, связанные с трубопроводами хладагента (внутри)
Daikin LXE 10E-1
Е. Прочие детали (хомуты для труб, уплотнительные и изоляционные материалы и т. д.)
Daikin LXE10E-1
Daikin LXE10E-1
Daikin LXE10E-1
Daikin LXE10E-1
Daikin LXE10E-1
F. Блок управления
Daikin LXE10E-1
Daikin LXE10E-1
Примечание: Переключатель, табличка с названием операции и табличка с названием дисплея (F7-10, 11, 12) собраны на заводе. Соответственно, индивидуальная сборка невозможна. В случае неисправности какого-либо компонента в этих узлах, замените весь блок управления F7 целиком.
G. Детали, относящиеся к табличке с названием.
Daikin LXE10E-1
I. Части, относящиеся к варианту 1 – USDA
Daikin LXE10E-1
J. Части, относящиеся к варианту 2 – МОДЕМ
Daikin LXE10E-1
К. Детали, относящиеся к варианту 3 – Защитная решетка для внутреннего вентилятора
Daikin LXE10E-1
L. Список размеров стандартных трубных хомутов
Daikin LXE10E-1
1. Resin clamp

NO.

PARTS NO.

PARTS NAME

DWG NO.

SIZE

QTY

D

C

H

E9

0118273

Resin clamp

NE41015-2

6.8

15.8

4.8

5

E14

0508162

Resin clamp

NE41015-3

8.4

16.7

4.8

1

E11

0944528

Resin clamp

NE41015-7

19.8

24.6

7.9

1

E10

1222764

Resin clamp

NE41015-9

26.9

27.8

7.9

1

E12

0142492

Resin clamp

NE41015-10

29.2

29.4

7.9

3

E13

1266788

Resin clamp

NE41015-12

39.4

34.2

9.5

4

Daikin LXE10E-1
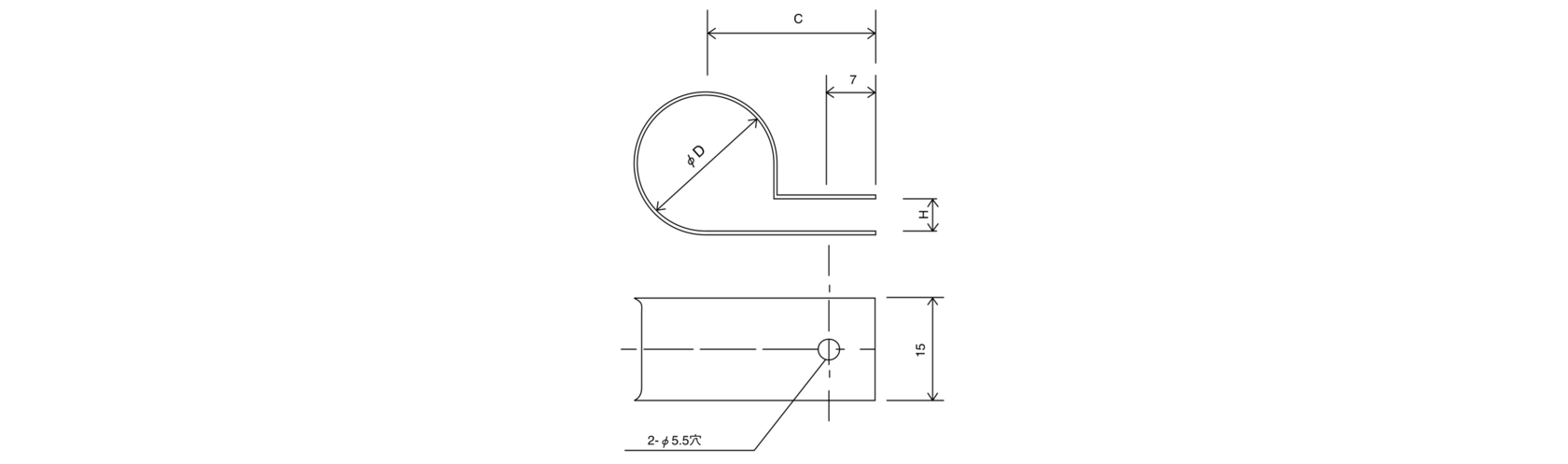
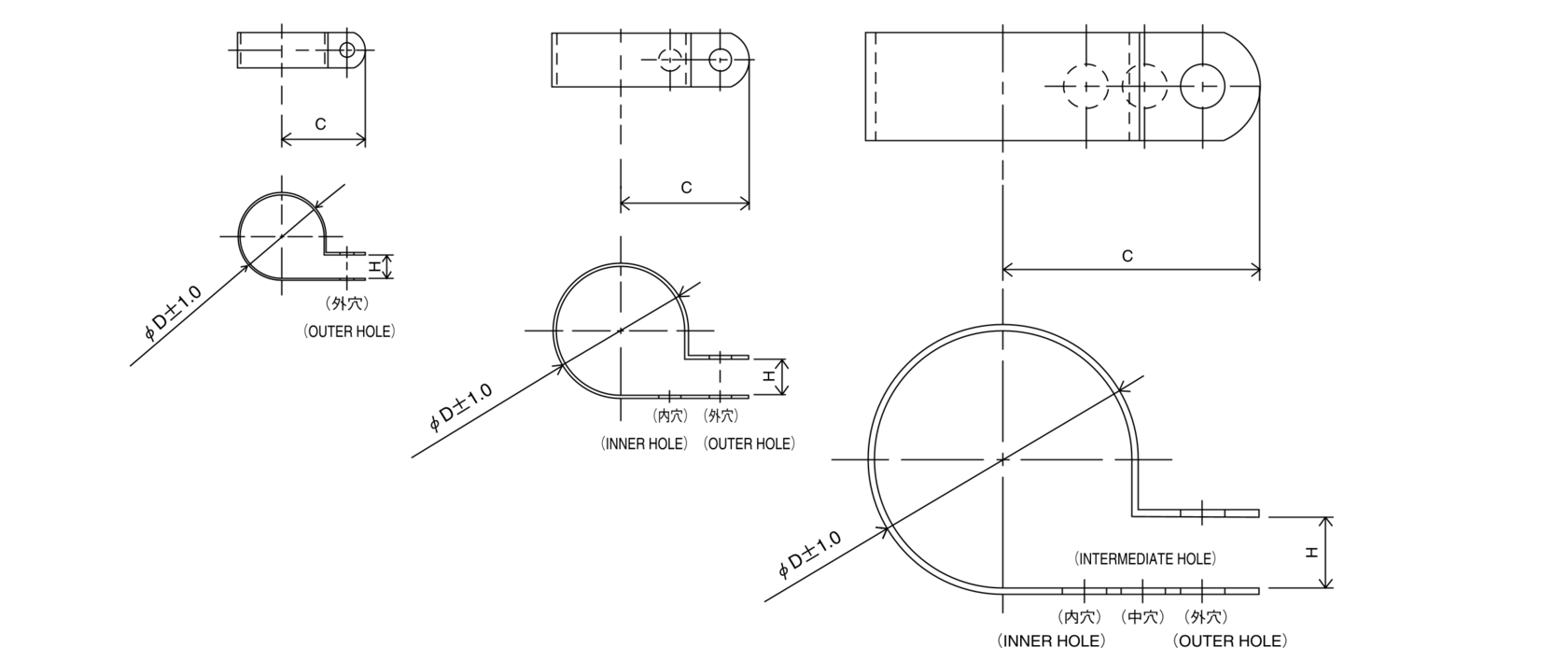
2. Tube clamp

NO.

PARTS NO.

PARTS NAME

DWG NO.

REMARKS

QTY

D

C

H

E15

0782775

Tube clamp

NE31016-51

10

20

3

5

E16

0702382

Tube clamp

NE31016-52

12

21

3

7

E17

0414421

Tube clamp

NE31016-53

14

22

3

2

E18

0700090

Tube clamp

NE31016-54

16

23

4

1

E19

1266795

Tube clamp

NE31016-55

18

24

5

1

E20

0016290

Tube clamp

NE31016-56

20

25

5

1

E22

1266810

Tube clamp

NE31016-57

22

26

5

1

E29

1266865

Tube clamp

NE31016-60

28

29

5

1

E6

1270439

Tube clamp

NE31016-61

30

30

5

2

E21

1266803

Tube clamp

NE31016-70

8.5

20

1

4

Daikin LXE10E-1
3. Cushion rubber for pipe clamp

NO.

PARTS NO.

PARTS NAME

DWG NO.

QTY

REMARKS

E35

1266911

Cushion rubber

NE41013-3-500

3

Cut to suit pipe size.

M. Примечание для заказа запасных частей:
1. Детали рекомендуется заказывать вместе с уплотнением, прокладкой, уплотнительным материалом и табличкой с названием;
Для заказа следующих запасных частей мы рекомендуем одновременно заказывать следующие сальниковые уплотнения, прокладки, уплотнительные материалы и табличку с названием.
Daikin LXE10E-1
(1) Service door

NO.

PARTS NO.

PARTS NAME

DWG NO.

REMARKS

A4

1295476

Access panel ass'y

1P006678-2

(Without cushion and sealing material)

A5

1266207

Cushion material

3P033608-1


A6

1196113

Sealing material

3P001640-2


Daikin LXE10E-1
(2) Control box cover

NO.

PARTS NO.

PARTS NAME

DWG NO.

F7

1497164

Control box cover ass'y

2P121586-1

G3-1

1494538

Name plate, operation upper

3P128419-1

G3-2

1494545

Name plate, operation lower

3P128420-1

G20

1497342

Name plate, wiring diagram

2V001143-1

※ Резиновая прокладка, ключ для листа прикреплен к узлу крышки блока управления.

Daikin LXE10E-1
(4) Ventilator cover (Upper)

NO.

PARTS NO.

PARTS NAME

DWG NO.

REMARKS

A19

0981060

Ventilator cover (Upper)

3P003175-1


A20

1266221

Sealing material (Ventilator cover (Upper))

4P016185-1

Required 2 pcs.

Daikin LXE10E-1
(5) Ventilator cover (Lower)

NO.

PARTS NO.

PARTS NAME

DWG NO.

REMARKS

A40

1494343

Ventilator cover (Lower)

3P119918-1


A46

1495098

Sealing material (Ventilator cover (Lower))

4P119920-1

Required 2 pcs.

G8

1495120

Name plate, Lower ventilator (English)

4P123593-1


G9

1495238

Name plate, Lower ventilator (Spanish)

4P128305-1


Daikin LXE10E-1
(6) Front plate (CA)

NO.

PARTS NO.

PARTS NAME

DWG NO.

A15

1493698

Front plate (CA)

2P114670-1

G4

1306530

Name plate, brond name

4P085985-1

G10

1178843

Name plate, refrigerant

3P009750-1

2. Электромагнитные клапаны и клапаын регулирования давления;
Для получения информации о названии, основном корпусе, электромагнитной катушке и узлах электромагнитных клапанов и т. д., применяемых в данной модели, обратитесь к следующей таблице.




Body / Coil

Nо.

PARTS Nо.

PARTS NAME

DWG Nо.

Common Parts

NEV-803DXF

NEV-202DXF

NEV-MOAB507C1

1. EV


Body

B7−3

1256495

Electronic expansion valve body

2SA50010−2-KU




Coil

B20

1299601

Electronic expansion valve coil

2P010454−1




2. HSV


Body

B7−4

0944566

Hot gas solenoid valve body

R3305118−1

Х



Coil

B7−5

0955287

Hot gas solenoid valve coil

3P010453−1



Х

3. DSV


Body

B7-4

0944566

Defrost bypass solenoid valve body

R3305118-1

Х



Coil

B7-5

0955287

Defrost bypass solenoid valve coil

3P010453-1



Х

4. BSV


Body

B7-4

0944566

Gas bypass solenoid valve body

R3305118-1

Х



Coil

B7-5

0955287

Gas bypass solenoid valve coil

3P010453-1



Х

5. RSV


Body

B7-4

0944566

Reheat coil bypass solenoid valve body

R3305118-1

Х



Coil

B7-5

0955287

Reheat coil bypass solenoid valve coil

3P010453-1



Х

6. CSV


Body

B7-6

0088738

Capillary solenoid value body

R3305099-1-KI


Х


Coil

B7-5

0955287

Capillary solenoid value coil

3P010453-1



Х

7. ESV


Body

B7-8

0088738

Economizer solenoid valve body

R3305099-1-KI


Х


Coil

B7-9

0955287

Economizer solenoid valve coil

3P010453-1



Х

8. ISV


Body

B7-8

0088738

Injection solenoid valve body

R3305099-1-KI


Х


Coil

B7-9

0955287

Injection solenoid valve coil

3P010453-1



Х

9. LSV

Body

B4-5

0944566

Liquid solenoid valve body

R3305118-1

Х



Coil

B4-6

0955287

Liquid solenoid valve coil

3P010453-1



Х

10. SMV

Ass'y

B8-1

1254538

Suction modulating Valve

2P078385-1


11. DPR

Ass'y

B3-4

1241361

Discharge pressure regulating valve

3P074558-1


12. TEV

Ass'y

B7-11

1495353

Thermostatic expansion valve

3P128518-1


3. Датчики давления
Для выбора датчика давления, соответствующего данной модели, обратитесь к таблице ниже. При заказе датчика давления мы рекомендуем одновременно заказать термоусадочную трубку следующего качества.


Nо.

PARTS Nо.

PARTS NAME

DWG Nо.

TYPE

REMARKS

HPT


B16

0797234

High pressure transducer

4PA60522-1

SPCH01


B17

1011058

Cable, high pressure transducer

3P008835-1



LPT

B15

0797241

Low pressure transducer

4PA60524-1

SPCL02


B18

1011065

Cable, low pressure transducer

3P008835-2




E84

1267394

Heat shrinkable tube

4PA60531-2


Необходимо применять при замене вышеуказанных датчиков.

4. Датчики температуры.
Информация о датчиках температуры, используемых в данной модели, приведена в следующей таблице.
Температурные датчики Daikin LXE10E-1
Датчики температуры


No.

PARTS No.

PARTS NAME

DWG. No.

TYPE

WIRE COLOR

LENGTH,

mm

※1 LOCATION

TEMPORALY EXCHANGABILITY

A

B

1. SS

C24

1375310

Supply air temp. sensor

3PA61769-11

ST9503-11

green

-

4700

Indoor A

Х

2. DSS

C25

1375327

Data recorder supply air temp. sensor

3PA61769-12

ST9503-12

green

Red

4700

Indoor A

Х

3. RS

C26

1375334

Return air temp. sensor

3PA61769-13

ST9503-13

Blue

-

6700

Indoor B

Х

4. DRS

C27

1375341

Data recorder return air temp. sensor

3PA61769-14

ST9503-14

Blue

Red

6700

Indoor B

Х

5. EIS

D4

0983376

Evaporator inlet temp. sensor

3P012118-1

ST9703-1

Brown

-

3200

Indoor EVP.


6. EOS

D5

0798314

Evaporator outlet temp. sensor

3PA61769-5

ST9503-5

Yellow

-

3200

Indoor EVP.

Х

7. DCHS

B11

0983321

Discharge pipe temp. sensor

3SA48009-10

ST9701-10

-


2800

Outdoor

Х

8. AMBS

B12

0798321

Ambient air temp. sensor

3PA61769-6

ST9503-6

-

-

2900

Outdoor

Х

9. SGS

B13

0983338

Compressor suction gas temp. sensor

3PA61769-9

ST9503-9

White

-

2900

Outdoor

Х

N. Измерительные и регулировочные инструменты:
1. Инструменты для действий в чрезвычайных ситуациях;
2. Кабель для персонального компьютера (для DCCS)
Ниже представлены соединительные кабели, необходимые для обмена информацией между холодильной установкой и персональным компьютером. В таблице ниже описаны детали, необходимые для новых моделей LXE-C, -D и -E.
Кабель для подключения рефрижераторного контейнера к компьютеру

No.

PARTS No.

PARTS NAME

REMARKS

1

Local supply

Connection cable (reverse)

RS232C обратного (крестового) типа RS232C

2

9993324

Connection cable


3

Local supply

Adapter (gender changer)

D-sub 9P, Male-Male

4

1087149

Connection cable (3 Pins)

LXE10E-A Standard

5

1384509

Connection cable (5 Pins)

For LXE10E-1, LXE10E-A14,A15

Кабель для подключения рефрижераторного контейнера к компьютеру
Daikin Worldwide Parts Centers